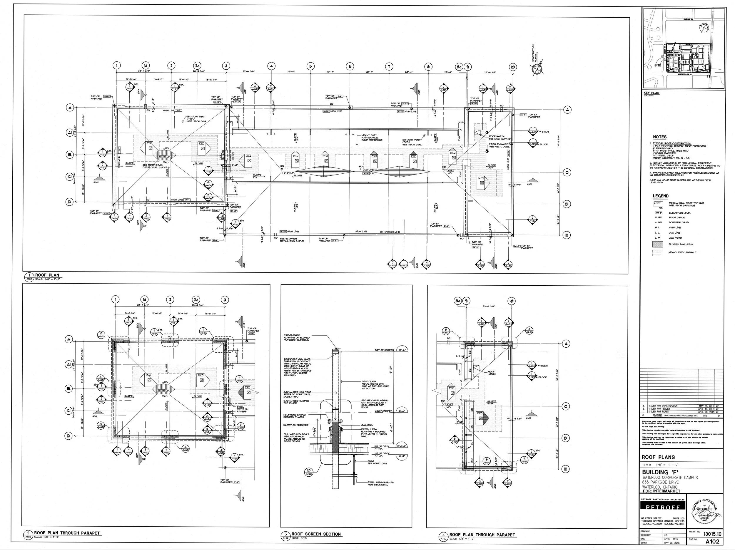
Waterloo Corporate Centre, Retail Buildings. Kitchener/Waterloo, ON - PM/CA
The following are pictures of a finished project that I was PM and CA of.
Project was while I was at Petroff/ARK.
This consisted of 5 retail buildings as one mass site development.
Each building with a varied number of retail units with some buildings having major tenants such as Shoppers Drug Mart. SOG construction, structural steel super structure, steel stud exterior walls with exterior finishes of EIFS, various types of brick, stone, and ACM.
























































