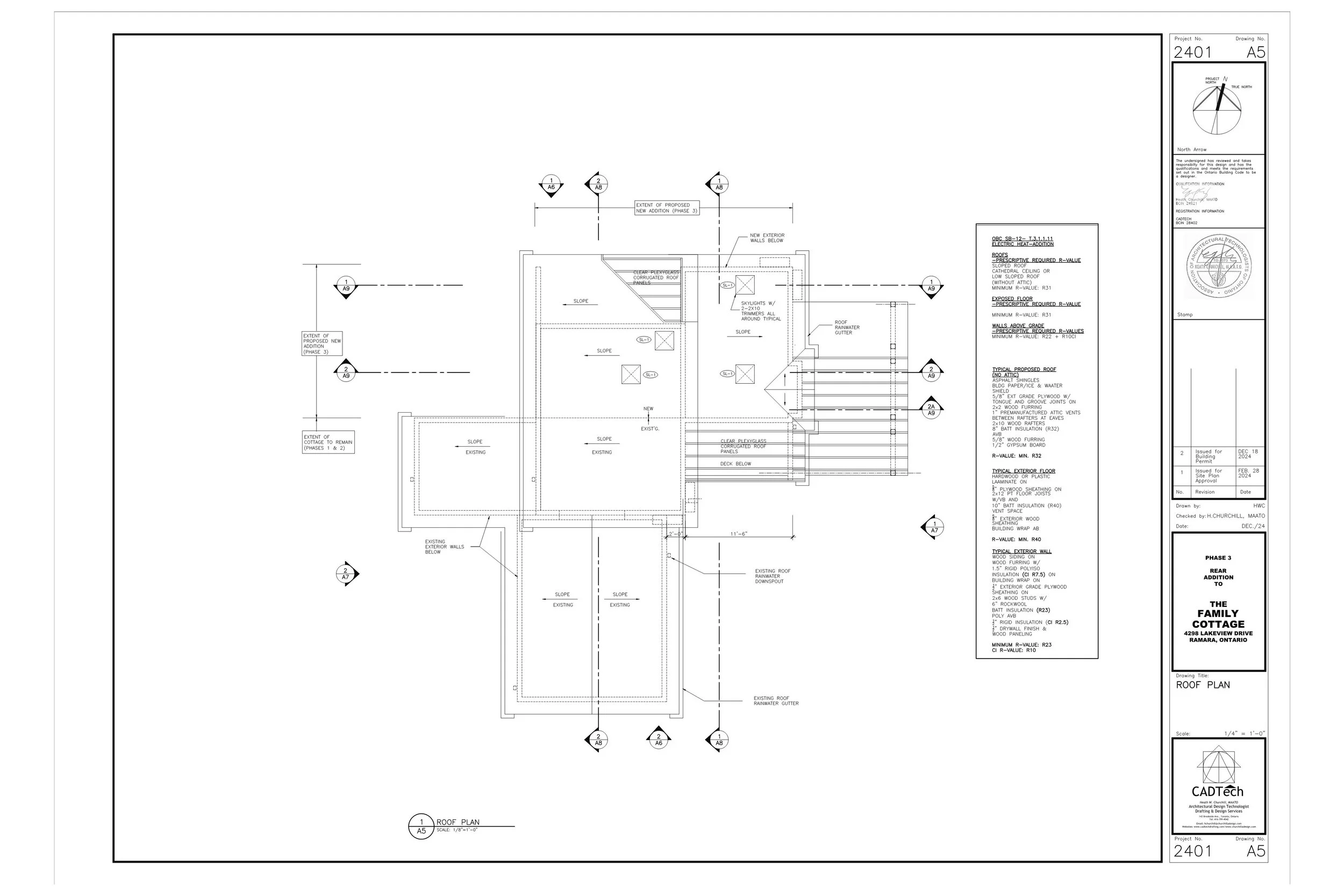
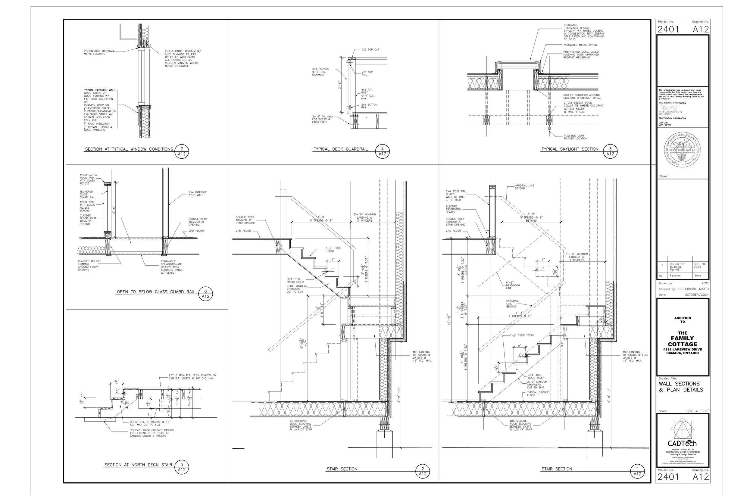
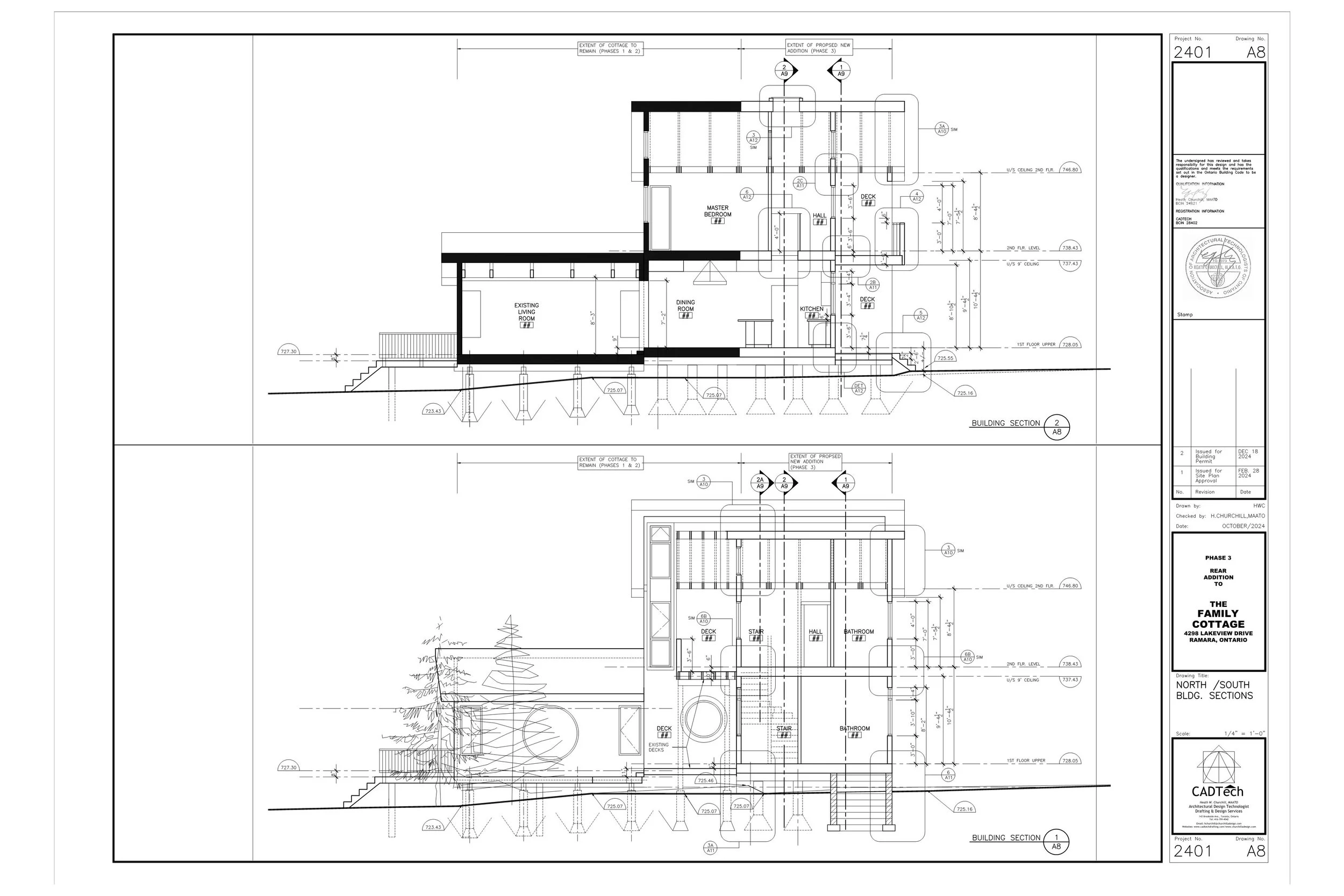
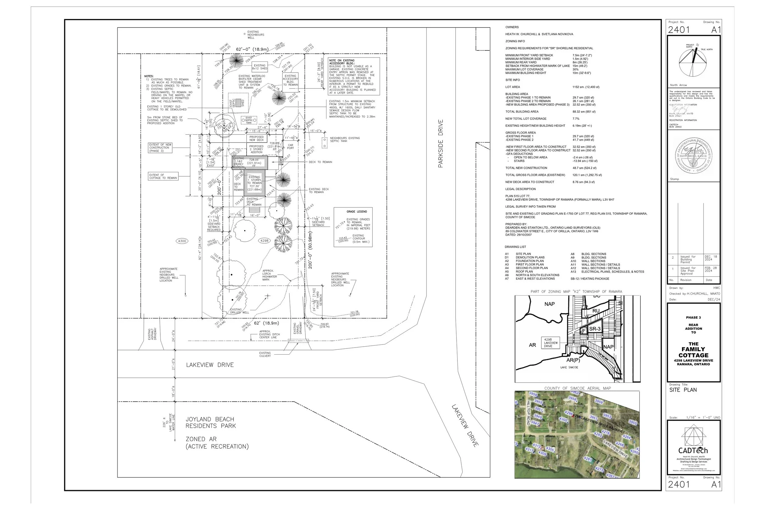
Lake Simcoe Cottage, Phase 3, Ontario

Two storey back addition, on piers, strip footings, block foundation walls to an existing old cottage.

Phase 3 pictures during construction and future drawings shown here.
This project is now in the design and approvals stage for Phase 3.
Full build drawings and 3D printed model from AutoCAD 3D model also shown.