Radford Ave., Toronto, Ontario - Laneway Suite

Laneway Suite (House)

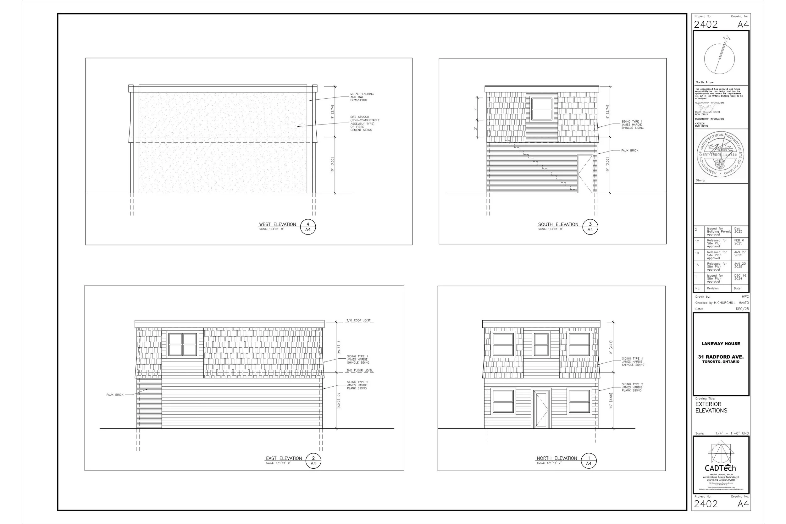
Design, Site Plan Approval, and Permit Drawings for a Laneway Suite in the High Park area.

Design mostly dictated by the client and the zoning approval.
With a few design recommendations by me.
Awaiting construction to start , and a letter from a lawyer related to a shared fire route access between client and adjacent property . Otherwise permissions are obtained.